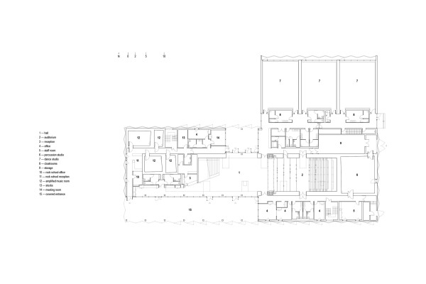
Konservatorium in Blagnac von ppa architectures
Bild 15/20
Grundriss Erdgeschoss
Bild: ppa architectures