Die Meldung in Bildern
Besucherzentrum im Fürst-Pückler-Park
Knoppekgrahl planen in Bad Muskau
Bild 12/19
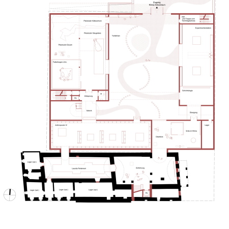
Grundriss Untergeschoss
Bild: knoppekgrahl