Die Meldung in Bildern
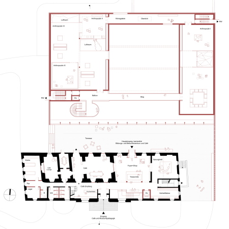
Besucherzentrum im Fürst-Pückler-Park
Knoppekgrahl planen in Bad Muskau
Bild 10/19
Grundriss Erdgeschoss
Bild: knoppekgrahl