Die Meldung in Bildern
Spielen in Mariä Himmelfahrt
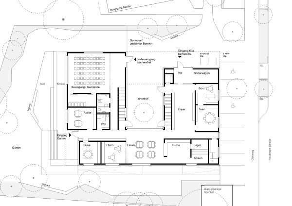
Kita von LIMA in Stuttgart
Bild 14/17
Erdgeschoss
Bild: LIMA Architekten