Die Meldung in Bildern
Unter einem Satteldach
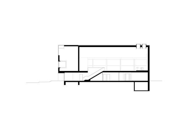
Kirchenumbau von Klinkenberg Architektur in Neustadt
Bild 15/19
Längsschnitt