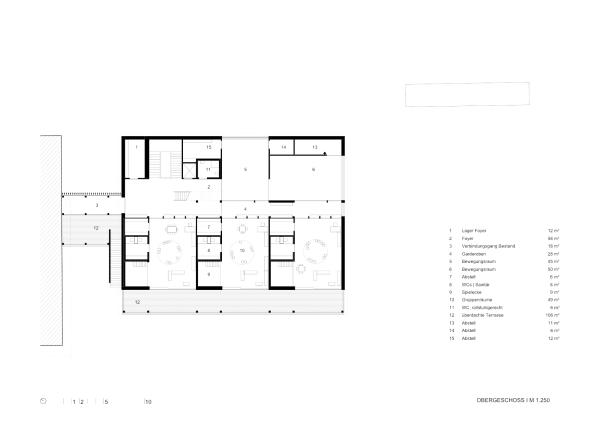
Kindergarten von LP Architektur in Reitdorf
Bild 12/15
Grundriss 1. Obergeschoss
Bild: LP Architektur