Die Meldung in Bildern
Holz in Holz
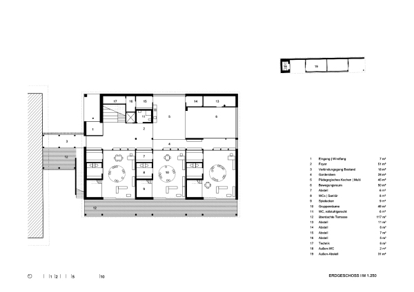
Kindergarten von LP Architektur in Reitdorf
Bild 11/15
Grundriss Erdgeschoss
Bild: LP Architektur