Die Meldung in Bildern
Ein Gebäude als kleine Stadt
Jugendzentrum in Schanghai
Bild 22/25
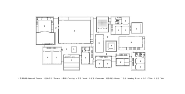
Grundriss 1. OG