Die Meldung in Bildern
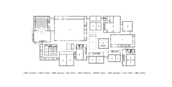
Ein Gebäude als kleine Stadt
Jugendzentrum in Schanghai
Bild 21/25
Grundriss EG