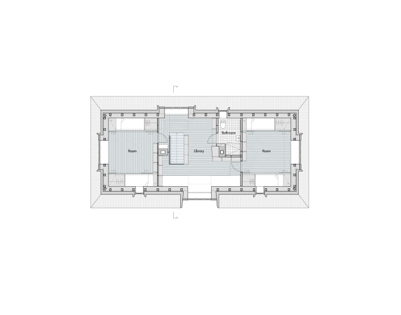
Grundriss des Obergeschosses nach dem Umbau

Bild 30/40

Grundriss des Obergeschosses nach dem Umbau

Bild: Johansen Skovsted Arkitekter