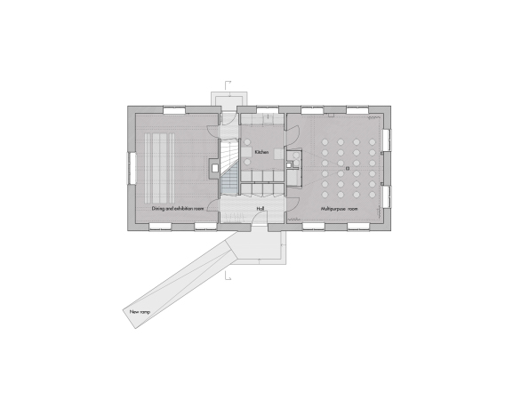
Grundriss des Erdgeschosses nach dem Umbau

Bild 29/40

Grundriss des Erdgeschosses nach dem Umbau

Bild: Johansen Skovsted Arkitekter