Die Meldung in Bildern
Kunsthaus Zürich von David Chipperfield Architects
Interview zur Schlüsselübergabe
Bild 37/46
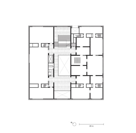
Grundriss 1.OG
Bild: David Chipperfield Architects