Die Meldung in Bildern
Kunsthaus Zürich von David Chipperfield Architects
Interview zur Schlüsselübergabe
Bild 36/46
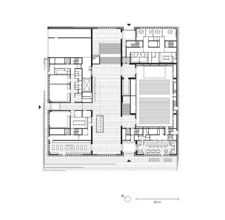
Grundriss EG
Bild: David Chipperfield Architects