In Berlin eröffnet das wiederaufgebaute Stadtschloss
Bild 31/42
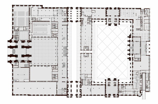
Grundriss Erdgeschoss
Bild: Stiftung Humboldt Forum im Berliner Schloss / Franco Stella mit FS HUF PG