Bild 30/42
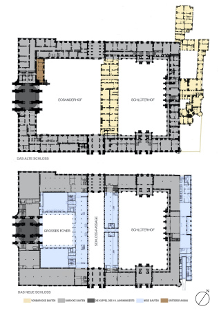
Zeitschichten des Schlosses und der Rekonstruktion.
Bild: Stiftung Humboldt Forum im Berliner Schloss / Franco Stella mit FS HUF PG
Bild 30/42
Zeitschichten des Schlosses und der Rekonstruktion.
Bild: Stiftung Humboldt Forum im Berliner Schloss / Franco Stella mit FS HUF PG