Die Meldung in Bildern
Betonskelett mit Belvedere
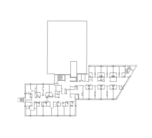
Hospitalanbau von Atelier Martel bei Paris
Bild 18/24
Grundriss 2. Obergeschoss
Bild: Atelier Martel