Die Meldung in Bildern
Betonskelett mit Belvedere
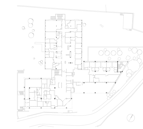
Hospitalanbau von Atelier Martel bei Paris
Bild 17/24
Grundriss Erdgeschoss
Bild: Atelier Martel