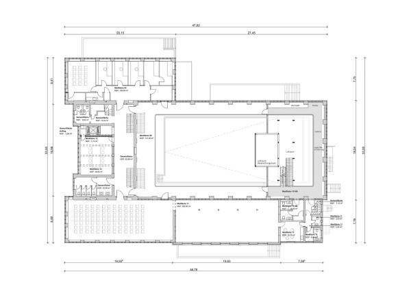
Hallenbad-Umbau von KM Architekten in Kassel
Bild 18/21
Grundriss 1. Obergeschoss
Bild: KM Architekten