Die Meldung in Bildern
Events im trockenen Pool
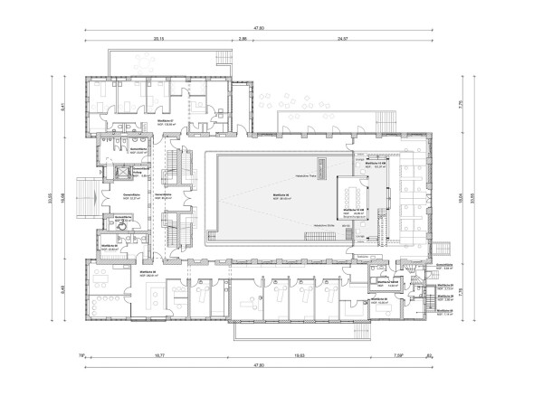
Hallenbad-Umbau von KM Architekten in Kassel
Bild 17/21
Grundriss Erdgeschoss
Bild: KM Architekten