Grundschule in Rottach-Egern von Peck.Daam Architekten
Bild 21/22
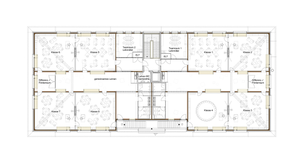
Grundriss Obergeschoss
Bild: Peck Daam Architekten