Grundschule in Fellbach von löhle neubauer architekten
Bild 21/21
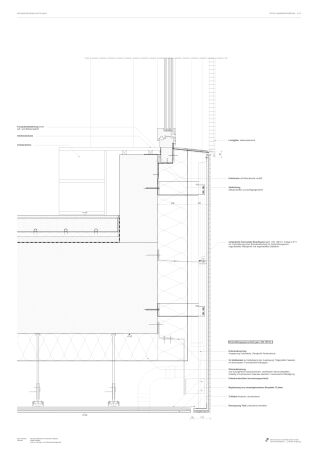
Detail Rücksprung
Bild: löhle neubauer architekten