Die Meldung in Bildern
Holz für Barcelona
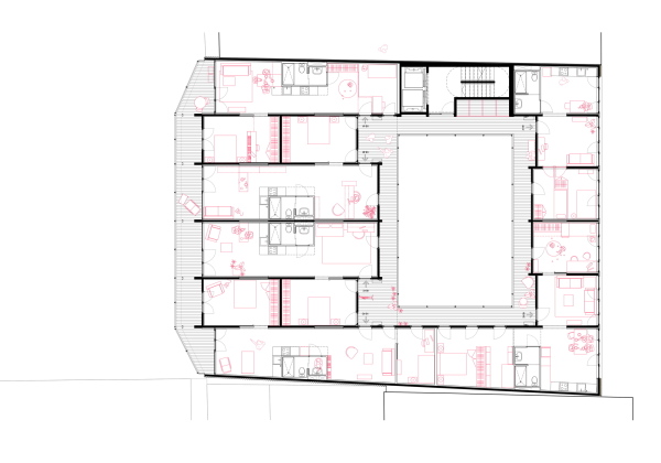
Genossenschaftshaus von LaCol
Bild 47/51
Grundriss 4. Obergeschoss
Bild: Cooperativa LaCol