Die Meldung in Bildern
Holz für Barcelona
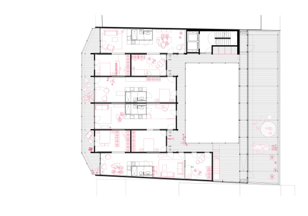
Genossenschaftshaus von LaCol
Bild 48/51
Grundriss 6. Obergeschoss
Bild: Cooperativa LaCol