Forschungsbau für Biomedizin von sop-architekten in Aachen
Bild 16/21
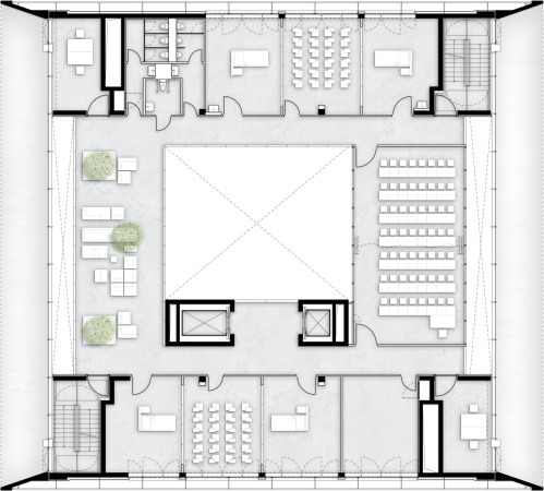
3. Obergeschoss
Bild: sop architekten