Forschungsbau für Biomedizin von sop-architekten in Aachen
Bild 15/21
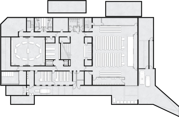
Untergeschoss
Bild: sop architekten