Die Meldung in Bildern
Wohnungsbau für Staatsbedienstete
Fink+Jocher in München
Bild 22/22
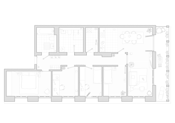
Wohungstyp 5-Zimmer Wohnung
Bild: Fink+Jocher