Die Meldung in Bildern
Jenga am Fluss
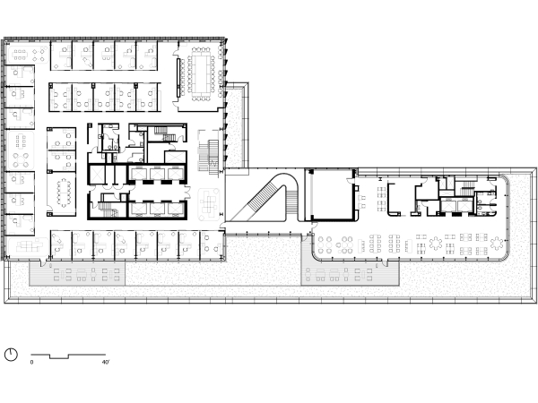
Fakultätsgebäude in Boston von KPMB architects
Bild 33/40
Ebene 5
Bild: KPMB Architects