Die Meldung in Bildern
Soziale Rendite in der Alten Samtweberei
Fabrikumnutzung in Krefeld
Bild 16/21
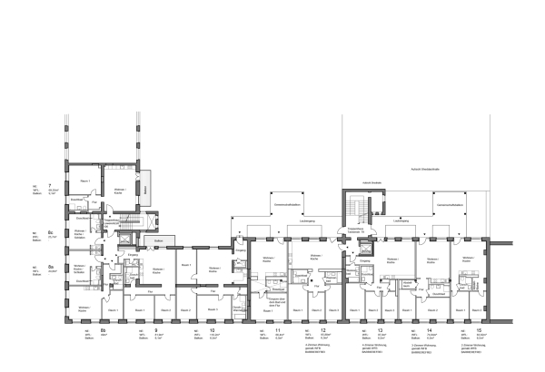
Grundriss 1. Obergeschoss
Bild: Heinrich Böll Architekten