Die Meldung in Bildern
Soziale Rendite in der Alten Samtweberei
Fabrikumnutzung in Krefeld
Bild 15/21
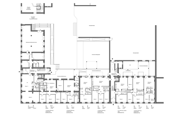
Grundriss Erdgeschoss
Bild: Heinrich Böll Architekten