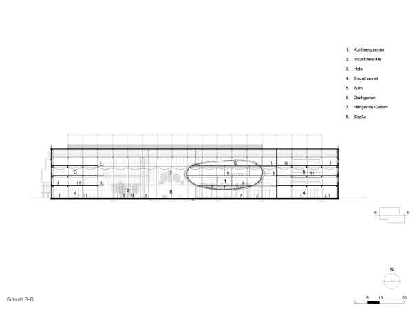
Fabrikumbau in Hangzhou von Peter Ruge Architekten
Bild 22/23
Längsschnitt
Bild: Peter Ruge Architekten