Erweiterung zum Wohnensemble in Berlin von bfstudio-architekten
Bild 18/24
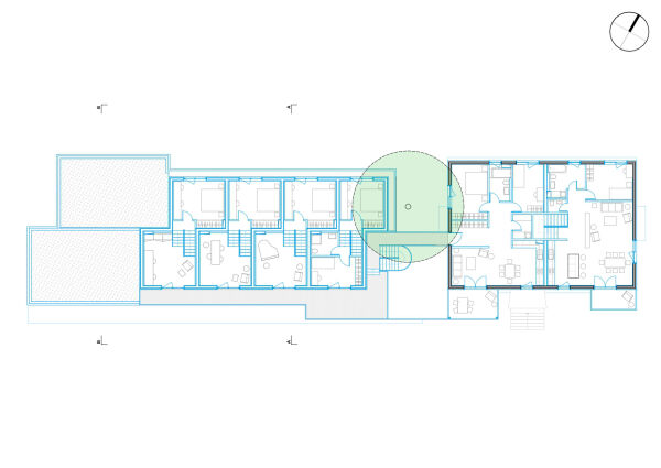
Grundriss Dachgeschoss
Bild: bfstudio architekten