Die Meldung in Bildern
Lernen am eingestürzten Archiv
Erweiterung von ZILA in Köln
Bild 21/25
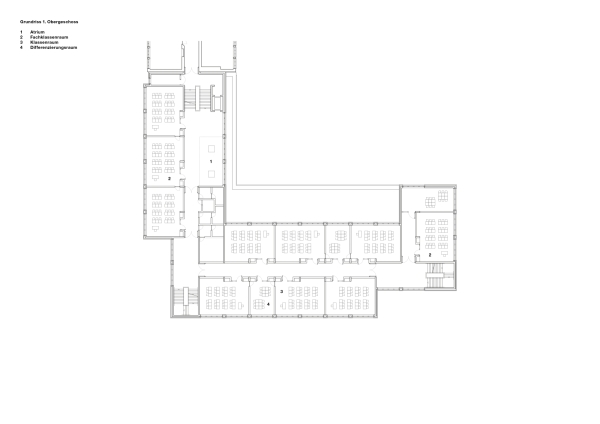
Grundriss 1. Obergeschoss
Bild: ZILA