Die Meldung in Bildern
Lernen am eingestürzten Archiv
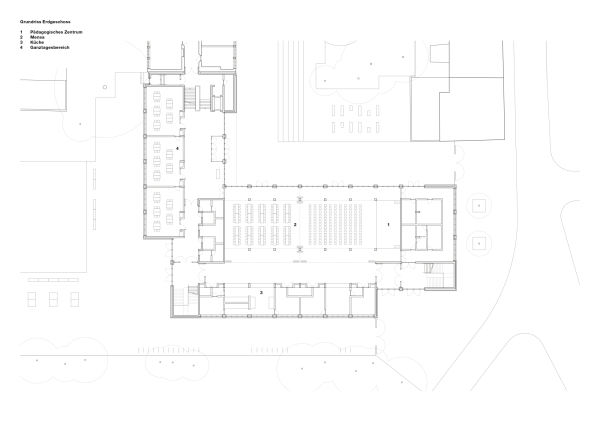
Erweiterung von ZILA in Köln
Bild 20/25
Grundriss Erdgeschoss
Bild: ZILA