Erweiterung von Mue am Genfer See
Bild 32/35
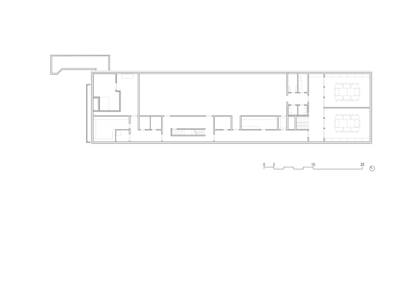
Grundriss Untergeschoss
Bild: Mue atelier d'architecture