Die Meldung in Bildern
Das Dorf in die Schule lassen
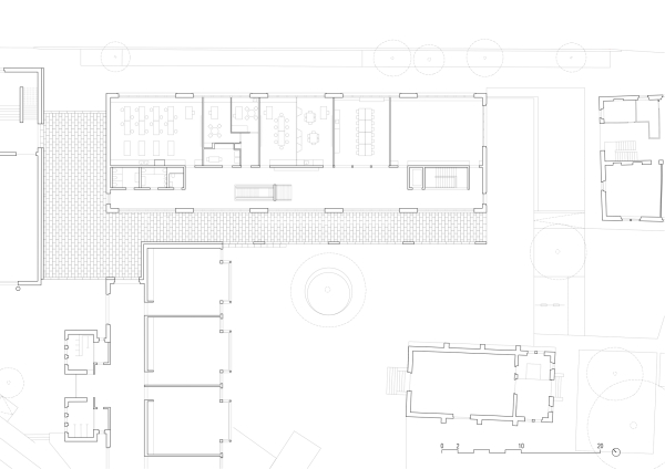
Erweiterung von Mue am Genfer See
Bild 31/35
Grundriss Erdgeschoss
Bild: Mue atelier d'architecture