Die Meldung in Bildern
Wohnen über Gabelstützen
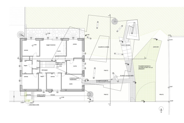
Erweiterung bei Turin von ElasticoFarm
Bild 26/30
Erdgeschoss Bestand
Bild: ElasticoFarm