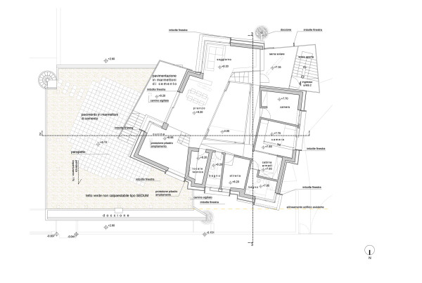
Grundriss Erweiterung im Obergeschoss

Bild 27/30

Grundriss Erweiterung im Obergeschoss

Bild: ElasticoFarm