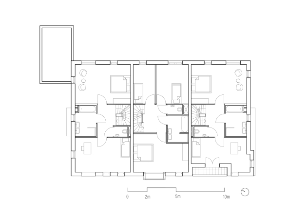
Grundriss Obergeschoss von den Einfamilieneinheiten in einer Dreiergruppe

Bild 19/24

Grundriss Obergeschoss von den Einfamilieneinheiten in einer Dreiergruppe

Bild: (c) Orange Architects