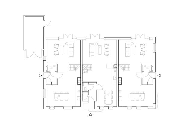
Grundriss Erdgeschoss von den Einfamilieneinheiten in einer Dreiergruppe

Bild 18/24

Grundriss Erdgeschoss von den Einfamilieneinheiten in einer Dreiergruppe

Bild: (c) Orange Architects