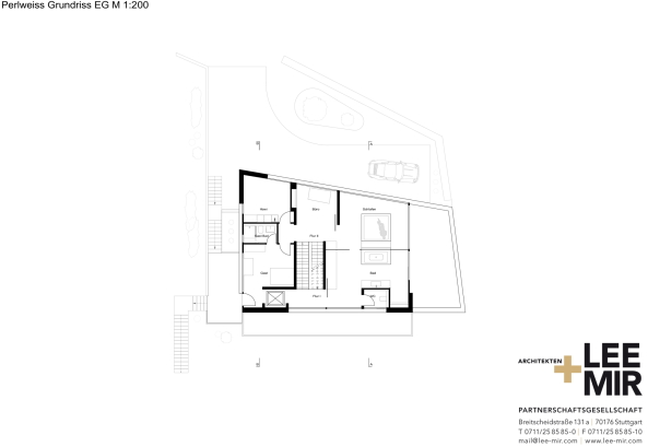
Villa Perlweiss; MIR + Lee Architekten; Stuttgart; Neubau; Einfamilienhaus; polygonal; Dymanisch; asymmetrisch; Mamor; Arcylstein

Bild 16/17

Bild: LEE + MIR Architekten