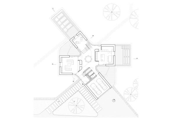
Christian Richters, Haus H, Ostwestfalen, Digital Architecture, One Fine Day, architektur-werk-stadt Balhorn Wewer Karhoff

Bild 26/33

Erdgeschoss, unteres Niveau