Backstein, Brick, Stephane Paumiere Architects, Amit Pasrichi, Botschaft, franko-deutsche Botschaft, Dhaka, Louis Kahn

Bild 19/23

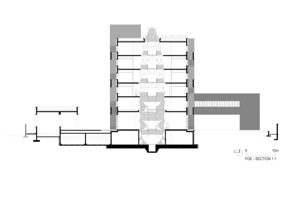
Querschnitt durch das Botschaftsgebäude von Stéphane Paumière Architects.