Cluster-Schulzentrum von Dietmar Feichtinger Architectes in Gloggnitz
Bild 33/37
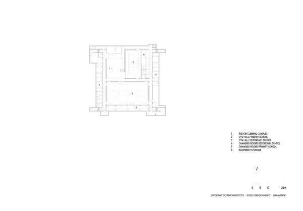
Grundriss Untergeschoss
Bild: Dietmar Feichtinger Architectes