Cluster-Schulzentrum von Dietmar Feichtinger Architectes in Gloggnitz
Bild 32/37
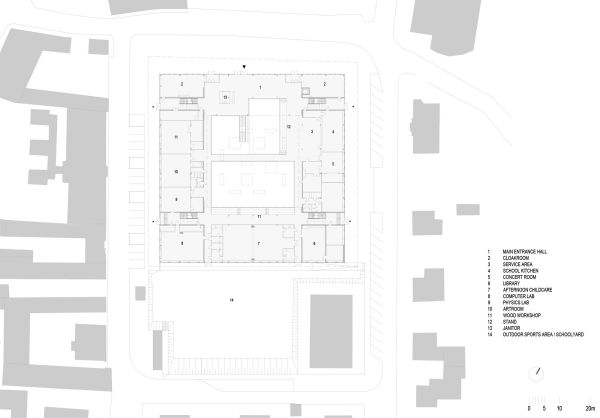
Grundriss Erdgeschoss
Bild: Dietmar Feichtinger Architectes