Die Meldung in Bildern
Im Nieselregen von Kingston
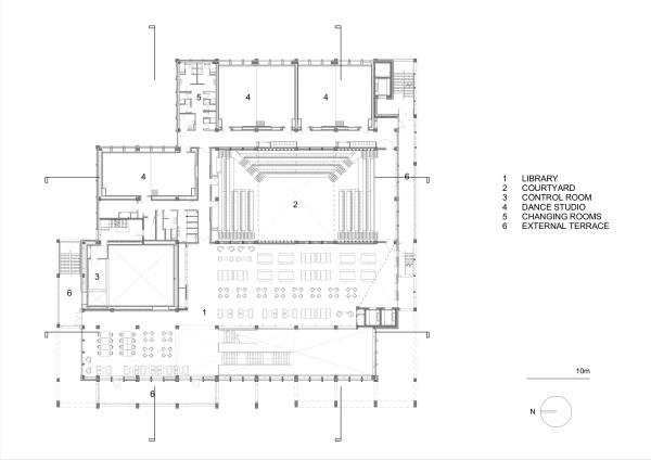
Campusgebäude von Grafton in London
Bild 19/28
Grundriss 1.OG
Bild: Grafton Architects