Die Meldung in Bildern
Im Nieselregen von Kingston
Campusgebäude von Grafton in London
Bild 18/28
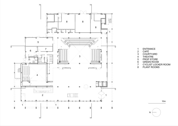
Grundriss Erdgeschoss
Bild: Grafton Architects