Die Meldung in Bildern
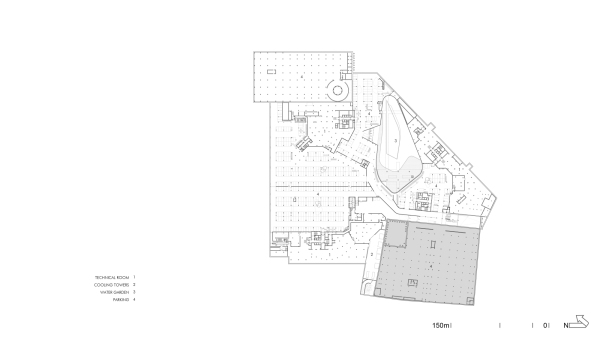
Symbolische Erdschichten
Bürokomplex bei Mailand von Morphosis
Bild 32/52
Grundriss Untergeschoss
Bild: Morphosis