Die Meldung in Bildern
Symbolische Erdschichten
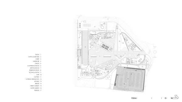
Bürokomplex bei Mailand von Morphosis
Bild 31/52
Grundriss Erdgeschoss
Bild: Morphosis