Die Meldung in Bildern
Arbeiten unterm Garten in Innsbruck
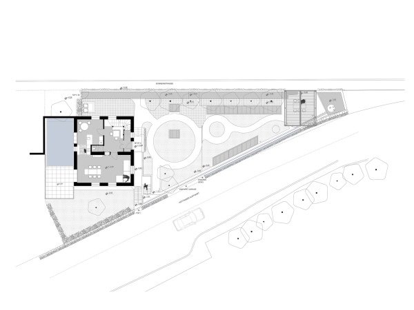
Büroerweiterung von Daniel Fügenschuh
Bild 13/18
Grundriss Erdgeschoss
Bild: Daniel Fügenschuh