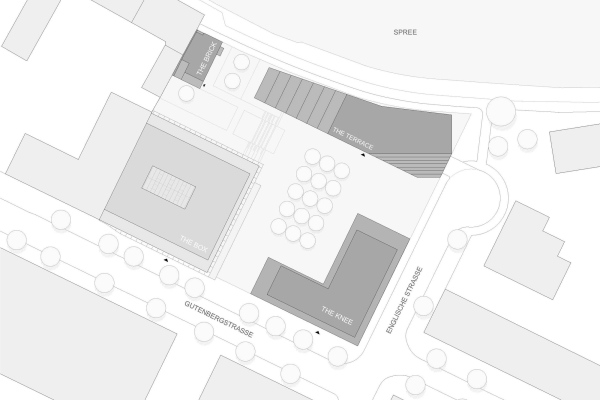
Lageplan des Grundstücks mit den vier Gebäuden.

Bild 7/38

Lageplan des Grundstücks mit den vier Gebäuden.

Bild: AHM Architekten